
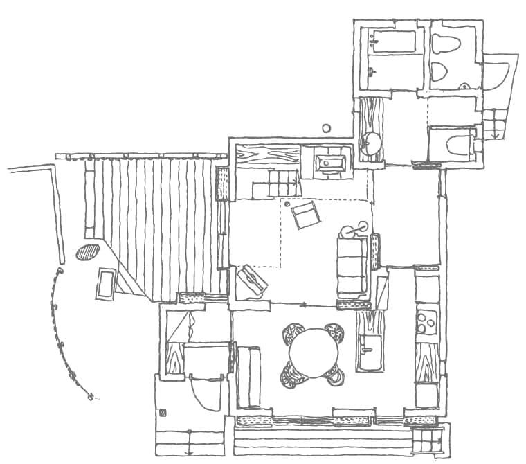
家族の団欒やそれぞれの思索の時間がテーブルに堆積されるダイニング。庭・デッキと一体になった使い方のできる気持ちの良い空間。

大谷石の土間、杉の天井、栗の床板、ナラの造作家具、木工細工の手摺とコート掛け、足元を照らす全開口の木製窓。

小さく、低く構える。敷地に素直になじませる。木々に囲まれたウッドデッキが様々な暮らしのシーンを思い起こすことができます。

吹抜け空間に薪ストーブを設置。リビングに温かな雰囲気を与えるとともに、階段下から吹抜け全体を暖める。

全開口の木製窓からの眺め。曽祖父が建てた稲荷社と梅の古木に見守られて静かな佇まいの外の部屋。

造作キッチンの良さは、個別の要望を聞きながら細かく設計できること。そして、キッチンのみが孤立することなく、空間的に統一したデザインが可能になる。
自然に抗わず、日常をデザインする。
自然に抗わず、
日常をデザインする。
1F

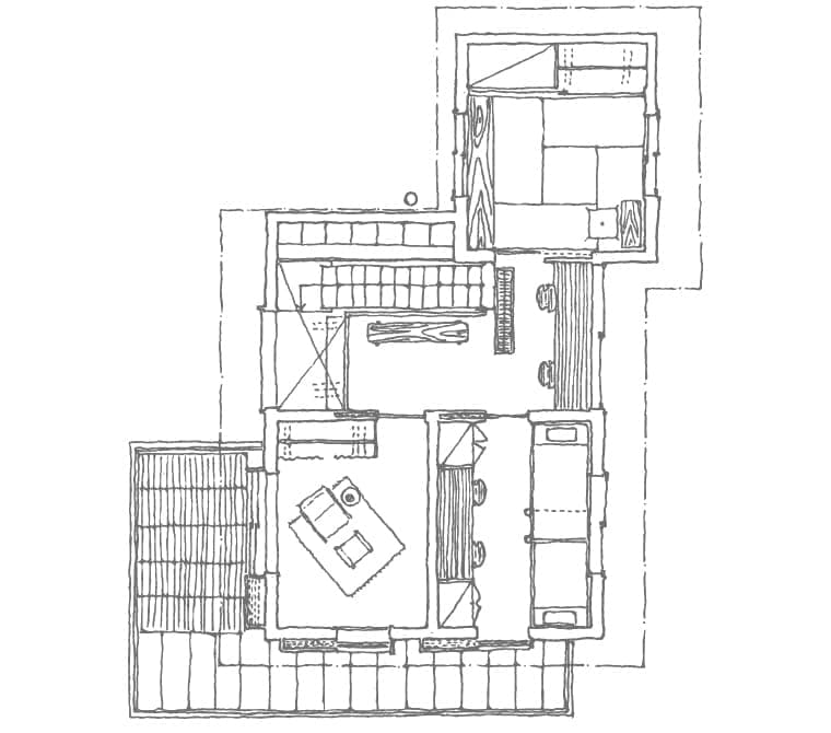
2F

空間は、それ自体、装置である。
空間は、それ自体、
装置である。

窓は「眺め」と「換気」の機能を分けることでカタチが良くなる。風通しに貢献する天窓は、開閉できるようにしておくとよい。

ひとが動き、窓が動き、本棚へ行く床が動く。その動きに合わせて、空気、熱、風が動く。「動き」が空間のカタチを決めている。

6畳の広さを姉妹でシェアできるようにした子ども部屋。気持ちが大らかになるよう、屋根の勾配に合わせた高い天井にした。2段ベッドは、頭の位置をずらすことで、それぞれの居場所をつくる。

それぞれの方位の窓からは、時間や季節によって質の違う光が射し込む。日常から離れた茶室的な空間に仕立てた。

家事室は、屋根の上にある「外の部屋」とつながるようになっている。良い季節には窓を全開にして外とつながり、働き者の家事室と物干し台は、楽しい空間となる。

機能や用途で部屋を考えなければ、空間は自由な表情を見せるようになる。空気や熱や風が、階段や吹抜け、窓を介して動くように立体的に空間を考える。吹抜けは物干しとなり、光を採り入れる井戸にもなる。